Khung giàn giáo H 1.2m là gì?
Khung giàn giáo H 1.2m là loại giàn giáo khung được thiết kế theo dạng chữ H với chiều cao tiêu chuẩn 1.2m. Đây là dòng sản phẩm được sử dụng phổ biến trong các công trình xây dựng nhờ thiết kế nhỏ gọn, chắc chắn và dễ lắp đặt.
Khung giàn giáo H 1.2m thường được kết hợp với các phụ kiện như giằng chéo, mâm giàn giáo, kích tăng và bánh xe để tạo thành một hệ giàn giáo hoàn chỉnh, hỗ trợ công nhân thi công ở độ cao một cách an toàn và hiệu quả.
Sản phẩm phù hợp cho nhiều công trình như nhà ở dân dụng, công trình sửa chữa, sơn tường, trát tường và lắp đặt thiết bị.
Thông số kỹ thuật khung giàn giáo H 1.2m
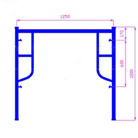
| Thông số | Chi tiết |
|---|---|
| Tên sản phẩm | Khung giàn giáo H 1.2m |
| Chiều cao | 1200 mm |
| Chiều rộng | 1250 mm |
| Đường kính ống | 42 mm |
| Độ dày ống | 1.8 – 2.0 mm |
| Vật liệu | Thép sơn dầu hoặc thép mạ kẽm |
| Trọng lượng | Khoảng 10 – 12 kg |
| Ứng dụng | Công trình xây dựng dân dụng |
Cấu tạo của khung giàn giáo H 1.2m
Khung giàn giáo H 1.2m được sản xuất từ ống thép chịu lực cao, đảm bảo độ bền và khả năng chịu tải trong quá trình thi công.
Các bộ phận chính gồm:
- Ống thép khung chính: chịu lực chính của giàn giáo
- Thanh ngang liên kết: tăng độ vững chắc cho khung
- Chốt khóa khung: giúp lắp ghép nhanh và an toàn
- Mối hàn công nghiệp: đảm bảo độ bền và độ ổn định khi sử dụng
Hệ giàn giáo khung thường sử dụng kèm các phụ kiện như:
- Giằng chéo giàn giáo
- Mâm giàn giáo
- Kích tăng (kích U hoặc kích bằng)
- Bánh xe giàn giáo
Ưu điểm của khung giàn giáo H 1.2m
Thiết kế nhỏ gọn
Khung giàn giáo H 1.2m có kích thước nhỏ, phù hợp với những không gian thi công thấp hoặc hẹp.
Lắp đặt nhanh chóng
Cấu tạo dạng khung giúp việc lắp ráp và tháo dỡ đơn giản, tiết kiệm thời gian thi công.
Độ bền cao
Sản phẩm được sơn chống gỉ hoặc mạ kẽm, giúp tăng tuổi thọ và chống ăn mòn trong môi trường xây dựng.
Chịu lực tốt
Khung được sản xuất từ thép chất lượng cao, đảm bảo khả năng chịu tải khi thi công trên cao.
Tiết kiệm chi phí
Giàn giáo khung H 1.2m có giá thành hợp lý, phù hợp với nhiều nhà thầu xây dựng.
Ứng dụng của khung giàn giáo H 1.2m
Khung giàn giáo H 1.2m được sử dụng trong nhiều công việc như:
- Xây tường
- Tô trát tường
- Sơn sửa nhà
- lắp đặt hệ thống điện nước
- thi công công trình dân dụng và công nghiệp
Nhờ thiết kế gọn nhẹ và linh hoạt, sản phẩm rất phù hợp cho các công trình nhà phố, nhà dân và công trình nhỏ.
Báo giá khung giàn giáo H 1.2m
Giá khung giàn giáo H 1.2m phụ thuộc vào nhiều yếu tố như:
- độ dày ống thép
- loại sơn hoặc mạ kẽm
- số lượng đặt hàng
Để nhận báo giá chi tiết và ưu đãi tốt nhất, khách hàng nên liên hệ trực tiếp với nhà cung cấp.
Địa chỉ cung cấp khung giàn giáo H 1.2m uy tín
Chúng tôi chuyên sản xuất và cung cấp khung giàn giáo H 1.2m chất lượng cao, đáp ứng nhu cầu thi công của nhiều công trình xây dựng.
Cam kết:
- sản phẩm đạt tiêu chuẩn chất lượng
- độ bền cao, chịu lực tốt
- giá cạnh tranh trên thị trường
- giao hàng nhanh chóng
Hotline: 









Đánh giá Khung giàn giáo H 1.2m
Chưa có đánh giá nào.